Serie Z200.2 - Kette, im Innenradius zu befüllen
1. Große Bolzen - lange Lebensdauer
2. Torsionsbewegungen möglich
3. Version E, im Außenradius zu befüllen
4. Version Z, im Innenradius zu befüllen
5. Leitungsschonender Innenraum
6. Anschlußelement mit integrierter Zugentlastung möglich
7. Schmutzabweisende Außenkontur
8. Sehr leicht zu befüllen - Kabel werden einfach eingedrückt
9. Patentiertes "Druckknopfprinzip" hält Glieder zusammen
10. Mit 1- oder 2-Kammersystem lieferbar
(fest eingespritztes Mehrkammersystem
für getrennte Leitungsverlegung)
Serie Z200
Lieferb. Innenbreiten:2x37,2x50 mm
Lieferbare Biegeradien R: 55 bis 200 mm
Teilung: 46 mm je Glied = 22 Glieder/m
Am Öffnungsprinzip überlappende Öffnungsstege
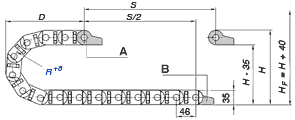
A=Mitnehmer, B=Festpunkt
Teilung: 46 mm
Glieder pro m: 22
Verfahrweg: S
Kettenlänge = S/2 + K
K = Zugschlag für Biegeradius bei der e-ketten Längenberechnung in mm
Hinweis: Kettenlänge für die Kettenglieder wird aufgerundet, da es keine halben Glieder gibt.